


Pickup available at
Brisbane (Virginia)
Gold Coast (Molendinar)
Melbourne (Derrimut or Dandenong South Central)
Newcastle (Cardiff)
Adelaide (Kilburn)
Perth (Jandakot)
20 depots across Australia are now fully operational.
Check individual listings for which products are stocked in which locations.
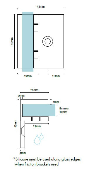
• Wall bracket - with offset leg
• Suitable for 8mm & 10mm glass
• 2x compression/friction screws - quick and flexible
installation as no holes in glass required
• Offset leg is useful when affixing glass close to corner by
positioning fixing screw away from wall edge
• 1x fixing screw & wall plug provided
