




Customizations Total: $0.00
Pickup available at
Eastern Creek (Sydney)
20 depots across Australia are now fully operational.
Check individual listings for which products are stocked in which locations.
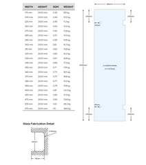
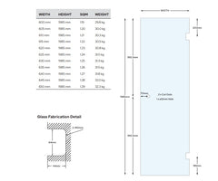
The Glass House Frameless Corner Shower Screen includes Grade A 10mm thick toughened safety glass. Choose from a wide range of sizes to create a multitude of different shower configurations and pair with the most extensive range of shower hardware available in the industry. Choose your preferred size from the options.
Here's what's included.
Glass
Glass Door at 1985mm high
Glass hinge panel at 2000mm high
Glass return panel at 2000mm high
Hardware
4 x Chrome high quality solid brass mechanically fixed wall brackets
2 x Chrome high quality solid brass glass to glass hinges
1 x Chrome high quality solid brass knob handle.
1 x clear flap for the shower door to deflect water back into the shower.
1 x water bar to help stop water escaping from under the door. 5mm high x 12mm wide,
Installation instructions below
Tips:
Shower screen sizes are external.
A hinge panel to the wall with a door and return panel to complete the screen.
Wall bracket gap is 1.5mm - 2mm
Hinge gap is 5mm.
Door gap is 3mm
Glass thickness is 10mm
Add a support bar for the hinge panel if required but generally with mechanically fixed brackets support bars or corner shelves are not required.
Delivery is to Sydney only. Collection is also possible from the Eastern Creek depot














