




Pickup available at
Brisbane (Virginia)
Gold Coast (Molendinar)
Melbourne (Derrimut or Dandenong South Central)
Newcastle (Cardiff)
Adelaide (Kilburn)
Perth (Jandakot)
20 depots across Australia are now fully operational.
Check individual listings for which products are stocked in which locations.
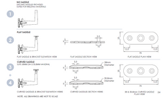
• Suitable for affixing round or rectangular handrails
• Easy to install! Use with our 970mm or 1280mm high, 12mm thick modular pre-drilled glass
• Stylish square profile design
• 
Included - , handrail standoff body, nylon washers & stainless steel threaded rod
Order saddles separately
 (flat saddle, 38 or 50.8mm curved saddles,)


