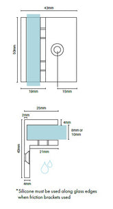
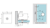
Purity Frameless Shower Hardware

Recently Viewed Products